$39

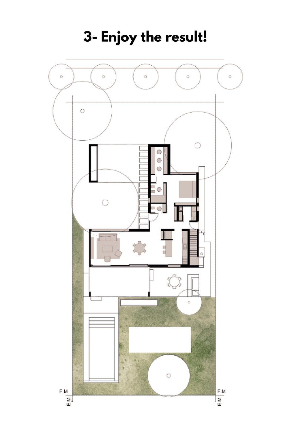
Final Final Photoshop Action For Rendering Architecture Floor Plans

Final Final Photoshop Action For Rendering Architecture Floor Plans

$39
37 ratings

We have stopped selling the action and this is the more developed version of it as a plug in https://sorreal.gumroad.com/l/tmsvo

use SURVIVING code for a discount

This product is not currently for sale.
1,656 sales
Include Flooring Textures
Includes Trees Brushes
Size
13.5 MB

Ratings

4.9
(37 ratings)
5 stars
97%
4 stars
0%
3 stars
0%
2 stars
0%
1 star
3%
Powered by